【高端護墻板 · 專注15年】
維尼,一個只做護墻板的品牌
7月初,耗時六個月的維尼總部體驗中心以全新形象向公眾呈現。此次升級,融合了全新品牌形象、品牌文化、產品多元化應用、工藝/配套系統、標準化銷售工具、各種銷售場景落地模擬......,以綜合體驗的方式,全面呈現維尼的高端與專業,為日后的發展奠定堅實基礎。

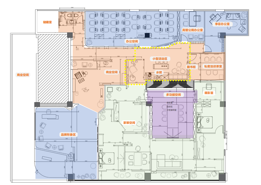
在設計之初,整個體驗中心就做了周全規劃(下圖所示)與策略,設計師克制純視覺表達的本能,摒棄新奇特的設計手法,以素凈、淡雅的格調表達品牌內涵,按照品牌文化、應用空間屬性、工藝/配套系統,集中選材、銷售招商、活力團隊等版塊來呈現維尼系統化運營能力。

▲維尼總部體驗中心功能分區圖
整個展廳墻面全部使用維尼護墻板,開放式布局,移步異景,空間布局巧妙靈活視覺層次多樣又統一,產品豐富,整體色調優雅、高端穩重。
下面按功能分區逐一介紹升級后的維尼總部體驗中心。
總部入口處
整體外觀大面積采用維尼自有產品【維尼藍】來體現品牌標準色,作為維尼超級IP的【維尼熊】,更是放在了入口C位,此處成為所有來賓爭相合影的打卡地,每位到訪客戶留下美好瞬間的同時傳播了維尼品牌。


品牌形象區
品牌形象區呈現的維尼發展歷程,記錄了2009—2023年之間,維尼人在成長路上的探索不止,這些時光印記見證成長的節點,銘記維尼人的蛻變。
每個數字、每張照片都蘊含著執著與艱辛,傳遞著溫度與力量,在這些照片里您能看到創始人李興濤在十多年前創業時切樣板、貼標簽、送貨的照片。


品牌文化區
企業沒有核心價值觀,如同無源之水,無本之木。
“勿以善小而不為”,維尼的價值觀是關愛,維尼人用環保產品為地球減負,致力于可持續的未來,對人類共同環境的關愛;維尼人用實際行動關注幫助弱勢群體,為其提供力所能及的幫助,用經營所得回饋社會,對社會的關愛...
創始人十分熱衷做公益,關注弱勢群體,盡己所能給予他們溫暖與力量。【維尼有愛·為你定制】不是一句單薄空泛的口號,而是真情實意的付諸行動。
通過視頻可以直觀看到所有維尼人的凝聚力與愛意:
國際聾人日組織到福利中心探望和陪伴孩子,為山區的孩子捐送書籍、玩具、衣服,植樹節組織員工一起植樹,關愛地球.......
維尼人一直樂于行善舉,獻愛心。在“為愛傳遞”的路上一直前行,讓愛蔓延。

▲圖片左側為品牌歷程介紹,右側為品牌文化區
前臺接待區
前臺接待區域墻面采用弧形工藝,折彎包柱,天花巧用鏡面膜產品,讓空間顯得靈動開闊。
接待臺用維尼藍包覆,金色做點綴,穩重雅致、尊貴不夸張。



商業空間
這個區域整體呈弧形,與維尼藍一樣,意寓著博大與包容,微水泥質感超薄護墻板自然折彎,搭配弧形燈光,在簡練的視覺中體驗空靈與寂靜。
【水滴石穿】的藝術裝置,是對維尼人日日不斷、持續改善的做事態度表達。


【維尼之窗】,炫彩膜產品疊加3D打印工藝,圖案采用【深海朝陽】。
此場景模擬黎明時分在落地窗前凝望大海的場景:深海藍(維尼藍)象征著博大、包容與厚積薄發的力量,象征著以愛和環保為價值主導的品牌價值觀;朝陽橙(維尼橙):朝陽光芒的顏色,象征著朝氣、活力、年輕與希望,是維尼團隊的本色。橙色與藍色融匯之處,變幻無窮,精彩紛呈。


模擬高端商業空間之玄關位,墻面采用金屬質感產品,搭配金屬感藝術品陳設,營造出尊貴高雅的商業氛圍。



用維尼鏡面產品設計成拱形門洞,讓空間通透的同時營造了輕松有趣的氣氛。

原木系U形拱門長廊,搭配暖色調燈光,走廊盡頭的綠植一并營造出自然和諧的空間,讓人身處其中心境平和、自然放松。


小型活動區
此區域模擬休閑水吧、餐飲空間,配有咖啡機、飲水機、冰箱等電器,書架、卡座、單人沙發、茶幾置于其中,滿足接待客戶需求的同時,亦作為員工工作之余休憩放松、舉辦小型聚會的場所。
維尼藍柜體點綴啞金色產品包覆的水吧臺,賦予空間靈動優雅的氣質。



商務洽談茶室
該空間陳列雅致有禪意,讓商務接洽更有儀式感,禪式靜謐的氛圍讓商談愉悅、高效。



多功能空間
集會議、培訓、小團體接待、大板選材、工藝/配套系統展示為一體的綜合空間。



兩側系統性地展示產品組合、工藝、配件及安裝規范,各種品牌物料、禮品、證書,凸顯維尼的專業與實力。


家裝空間
家是心靈棲息的安全港,需要回歸生活本質,關注人,讓空間為人服務,而不是朋友圈里的網紅打卡點。
維尼家裝空間配色大膽跳脫,用橙紅色與草綠色產品點綴,與原木色搭配,散在角落的永生綠植,讓生機與活力回歸生活,營造富有溫情的歡愉氛圍。




原木紋與布紋產品營造出的家庭茶室空間,禪意素美,一盞清茶,淡雅歸真。



客廳整體以純色為主,搭配精致的家具與裝飾品,高端雅致有格調。


專賣區展示
此區域是維尼的專賣區展示,系統性、標準化的銷售工具、標準化可快速復制的品牌道具,降低專業客戶與維尼合作的門檻,低成本做出專業的品牌展區,并且可以有效促成銷售。
小品類·大品牌——在護墻板領域,維尼定位做小品類中的大品牌,系統化+標準化+獨創全新商業模式,做專做精,為行業提供價值,讓更多環節獲取價值。


星級酒店套房展示
來維尼“住酒店”,“酒店套房”模擬展示,啞金色與維尼藍色產品結合,舒適沉穩,讓客人伴著優雅入眠,套房的辦公區采用布紋產品裝飾,安靜、溫馨,舒緩差旅中的疲憊靜享安心時刻。


將”戶外”搬進展廳,維尼的陽臺木產品輕松打造擁有陽光、綠植的自然空間,富有呼吸感,在家中感受自然的律動。


自然頑石點綴、植物柔曼,界定著空間的邊際,呈現出恬淡靜謐、充滿溫情的情態。

不同功能區域相互連接又相對獨立,和諧不沖突,在視覺上具有豐富的層次感,游走空間之中,高端雅致、時尚躍動與極致簡約毫無違和融在一起,猶如交響樂般的優雅與美妙。

辦公空間
員工辦公空間,入口玄關處用維尼藍做背景、金色維尼logo為裝飾,古銅色金屬網做通透隔斷,底部采用橙色燈光,營造出符合維尼團隊年輕果敢、激情創作的活力氛圍。

室內墻面采用維尼灰白色產品,天花用維尼藍噴涂,淡雅舒適,營造開放明亮的工作空間。

· 高管共用辦公室 Executive shared office
米灰色墻面產品使空間顯得簡約大方,柔化了商務的刻板與生硬,營造出溫情雅致的辦公氛圍。

· 創始人辦公室 Founder's Office
進入創始人辦公室,【維尼藍】、【維尼熊】不出意外的映入眼簾,在維尼熊旁邊一幅維尼熊創作手稿,記錄了維尼logo、維尼熊的誕生過程。


接待區用原木色還原創始人淳樸穩重、低調儒雅的個人特質。

寫在最后
最后用創始人辦公室墻上的一句話來結尾:
企業的成長不必太快,反而必須像樹木的年輪,慢慢生長,才會穩定與扎實。
一年有一年的年輪,年輪要細密,企業才有好體質。
——塚越寬《年輪經營》

獨屬于維尼品牌的【維尼藍】、【維尼熊】;墻面產品所營造雅致高端的氛圍,標準完善的系統、看得見的運營管理、活力四射的年輕團隊......貫穿整個體驗中心,聯動為立體生動的維尼。
品牌的系統性,空間的靈動性,此文章的文字與照片無法完整呈現,僅為概述,如有意詳盡了解,歡迎到維尼總部親身體驗,更多驚喜等您來解鎖!維尼人歡迎您!
>